Product introduction
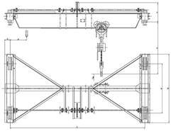
SLX model manual drive overhead crane is single girder manual overhead crane, the all motions are drive by hand, it is used in the place that no power source.
This overhead crane (bridge crane) is characterized by more reasonable structure and higher strength steel as a whole, the main beam is made by I-beam or box frame steel beam, the end carriages are made by C-section beam.
This overhead crane (bridge crane) is used together with chain hoist as a complete set.
The capacity from 1 ton to 10 tons. The span from 5m to 14m, the working grade is A1-A3. Working temperature within -25 to +42 centigrade.
This overhead crane (EOT crane) is prohibited to use in the combustible, explosive to corrosives environment.
Features
- All motions are drive by hand, it's used in the place that no power source.
- Characterized by the more reasonable structure and higher strength steel as a whole, the main beam is made by I-beam or box frame steel beam, end carriages are made by C-section beam.
- Used together with chain hoist as a complete set.
- Capacity from 1 ton to 10 tons; span from 5m to 14m; working grade is A1-A3; Working temperature within -25°C to +42 °C.
- Prohibited to use in the combustible, explosive to corrosives environment.
- The wheel and wheel axle and treating by high-efficiency quenching and tempering, it can eliminate the internal stress effectively and ensure the processing precision.
- Trolley frame, drum, and bogie frame and related big welding structure are treated by Annealing in the natural gas annealing furnace to ensure the Machining accuracy after welding.
Technical Detail
Single Girder Overhead Crane
ription
